MiYO / The Grand 35MYO18803DH
{message}


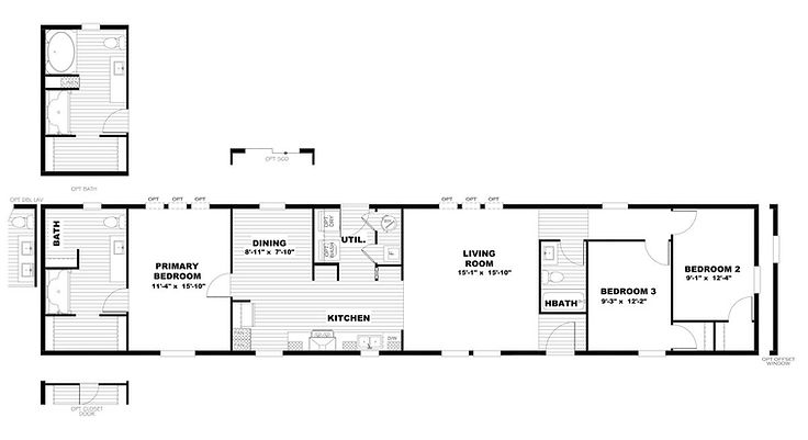
MiYO / The Grand 35MYO18803DH
Built By:
Clayton Bonham
3
Bedroom
2
Bath
1400
sqft
Single-Wide
The MiYO / The Grand built by Clayton Built offers an expansive 1400 square feet of living space, featuring 3 bedrooms and 2 bathrooms. This manufactured home stands out with its generous layout and modern design, providing ample room for comfortable living and entertaining. With its stylish features and functional spaces, The Grand is perfect for those seeking a blend of elegance and practicality. Discover spacious living with The Grand today.
Construction
Additional Specs: American Made I-Beam / Detachable Hitch / Full Length Outriggers / Truss Rafters 24″ OC / Thermal Zone 2 / Wind Zone 1
Exterior Wall On Center: 16″ O.C.
Exterior Wall Studs: 2 × 4 Exterior Walls
Floor Decking: 19/32″ Tongue & Groove O.S.B.
Floor Joists: 2 × 6 Floor Joists 16″ O.C. (14′ & 16″ wide) / 2 × 8 Floor Joists 16″ O.C. (18′ wide)
Roof Load: 20lb Roof Load
Insulation (Floors): R11
Insulation (Walls): R11
Insulation (Ceiling): R21
Request a Price Quote
Floorplan









